Regular price
$179.50
Free Shipping on all orders over $89
Most orders ship same day!
Order by phone or Questions? (800) 468 5997
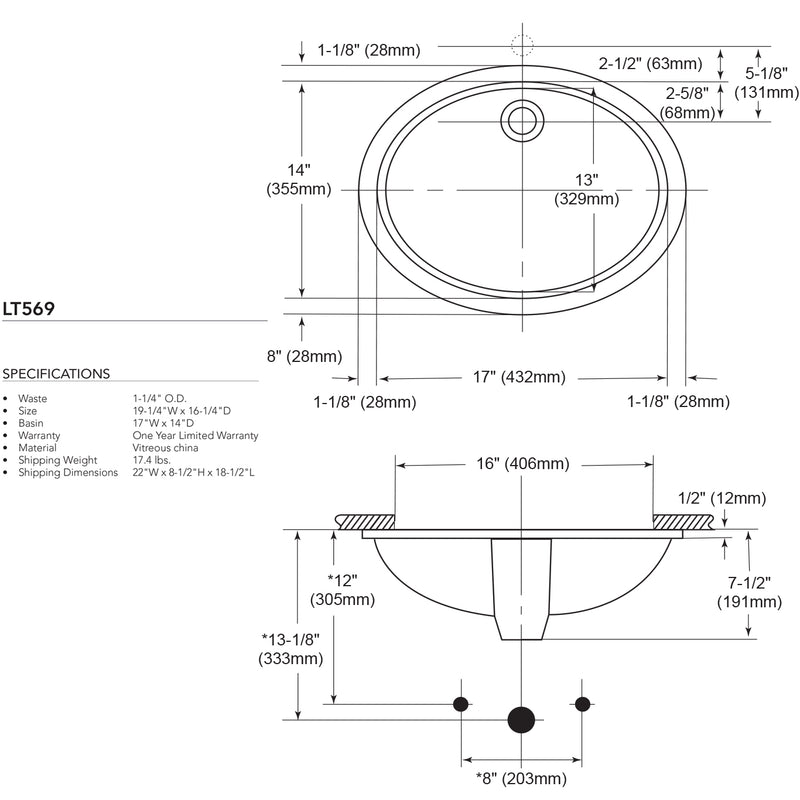
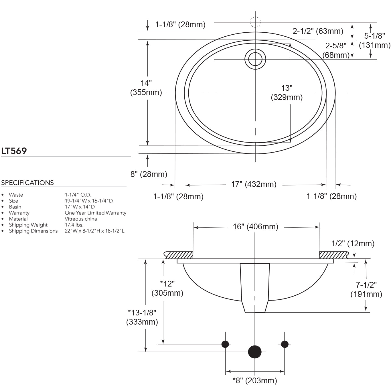
Toto LT569#03 - 17" x 14" Undermount Bathroom Sink - Bone
Created with modern simplicity, this lavatory offers a beautifully rimless, oval design. Features a generously wide basin, large backsplash and concealed front overflow. ADA compliant.
Features
- 17" x 14"
- Vitreous china
- ADA compliant
- Concealed front overflow
- Mounting assembly complete with installation template and mounting screw set for wood countertops
- THU410 is required for marble/granite type counter top installation and must be purchased separately
- THP5067#CP (Sold Separately) Grid drain 1-1/2" opening with 4" tail piece

